Zwei HÄUSER,

die eine klare

Einheit bilden

LUFTIGKEIT

und großzügige

RÄUME
inspiriert durch
WEINBERGREIHEN

Doppelhaus W

Das Doppelhaus, das über einem Weinberg thront, wurde für zwei Geschwister und ihre Partner entworfen, die gemeinsam ein schmales, langgestrecktes Grundstück erworben hatten. Die beiden Gebäude, die zu einer Einheit verschmelzen, sind ähnlich und doch unterschiedlich – genau wie Geschwister.

Die zweistöckigen Häuser ohne Keller befinden sich im oberen Teil des Grundstücks. Die Zufahrtswege führen von der Hauptstraße über einen kleinen Versatz zu den Garagentoren, vor denen Besucher parken können, sowie zu den Zugangstoren. All dies fügt sich in die Umzäunung ein und bildet eine einheitliche Linie. Die zweiten Stockwerke der Gebäude ragen über diese hinaus.

Bei der Materialauswahl wurde eine Kombination aus Holz und einer dunklen Metallverkleidung für die Fassade und die Dachfläche gewählt.

Die Grundrisse der Häuser sind spiegelbildlich angeordnet und unterscheiden sich in den Details. Das Konzept war für beide Eigentümer völlig zufriedenstellend.

Der überdachte Eingang gewährleistet einen bequemen Zugang zum Haus und zur Garage. Vom Vorraum aus hat man dank des langgestreckten Flurs einen Blick durch das gesamte Haus und dank des Fensters auf der gegenüberliegenden Seite bis in den Garten und die angrenzenden Weinberge.

Im vorderen Teil des Erdgeschosses befinden sich die Technikräume, das Arbeitszimmer, das Gästezimmer und die Treppe zum Obergeschoss. Es folgt der Wohnbereich mit Küche, Esszimmer und Zugang zum Garten. Dieser Raum ist teilweise zum Dachstuhl hin offen, sodass beide Stockwerke durch die Galerie im Obergeschoss miteinander verbunden sind. Diese Lösung verleiht dem Raum Luftigkeit und Großzügigkeit.

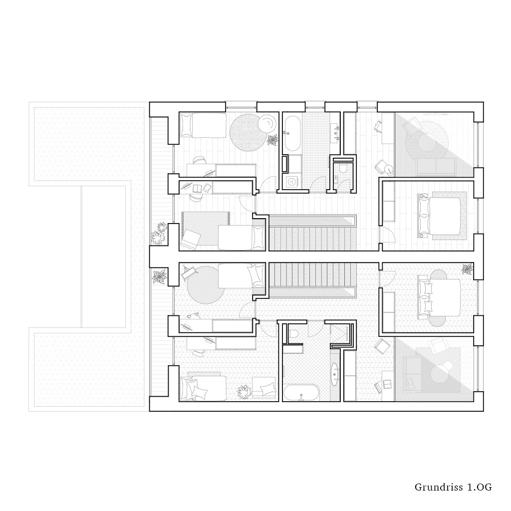
Über eine langgestreckte, einseitig angelegte Treppe gelangt man in den ruhigen Teil des Hauses. Dort befinden sich die Kinder- und Schlafzimmer sowie ein Arbeitszimmer mit Leseecke auf der Galerie.

Die schönste Aussicht vom Haus aus hat man in Richtung Weinberg. Sie kann vom Wohnbereich, vom Schlafzimmer und von der Galerie aus genossen werden.

An die dem Garten zugewandte Hausseite schließt sich eine Terrasse an, die in den abschüssigen Garten übergeht. Dank des natürlichen Übergangs zum Weinberg erscheint dieser fast unendlich lang.

 

 

Nach oben scrollen