TOPOGRAFIE

als Inspiration

für das OBJEKT

Verbindung

von LANDSCHAFT

und HAUS

Auf der Wiese

Das Grundstück ist direkt von der örtlichen Straße aus befahrbar. Dank der Geländehöhe ist das Haus vor Straßenlärm geschützt. Die Zufahrt führt zu den Garagen. Der Bereich vor dem Tor kann als weiterer Parkplatz genutzt werden.

Im unteren Teil des Hauses aus Beton befinden sich eine Garage und ein großzügiger Hobbyraum, der sich leicht in eine zweite Garage umwandeln lässt. Das reichhaltige Parkplatzangebot entspricht dem Wunsch des Eigentümers, der ein Autoliebhaber ist.

Vom Untergeschoss aus führt eine Außentreppe direkt zum Eingang. Eine zweite Zugangsmöglichkeit bietet der Fußweg, der vom Tor den Hang hinauf zum Haus führt.

Der nach Süden ausgerichtete Eingangsbereich ist mit einer Pergola überdacht und bietet einen Blick auf die gesamte Stadt, die sich im Tal unterhalb des Hangs erstreckt.

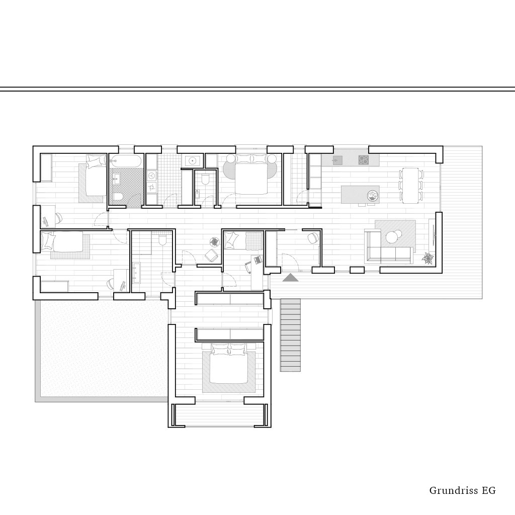
Der obere Teil des Hauses ist als Holzbau aus Sandwichpaneelen konzipiert. Der Grundriss des Gebäudes ist klar und einfach strukturiert. Durch die Lage des Haupteingangs in der Mitte des Hauses sind der Wohn- und Technikbereich im rechten Teil des Hauses klar definiert. Im linken Flügel befinden sich die Kinderzimmer. Der nach vorne ragende Trakt dient als Schlafzimmer mit großzügigem Ankleidezimmer und Arbeitszimmer.

Das Gebäude hat ein leicht geneigtes Pultdach und dank der Gestaltung mit Attika wurde eine klare, geometrische Form erreicht.

In der zweiten Umsetzungsphase sollte neben der vom Wohnbereich aus zugänglichen Außenterrasse ein Außenpool ergänzt werden.

Die erste Version der Studie traf genau den Geschmack des Kunden. Die Baugenehmigung wurde erteilt und die Unterlagen wurden bearbeitet. Leider wird das Projekt jedoch wahrscheinlich nicht realisiert werden. Der Kunde hat das Grundstück aus finanziellen Gründen verkauft.

 

 

Nach oben scrollen